项目类型:现代简约展厅装修设计 专业展厅装修设计公司 合肥展厅装修公司
项目设计:设计D组
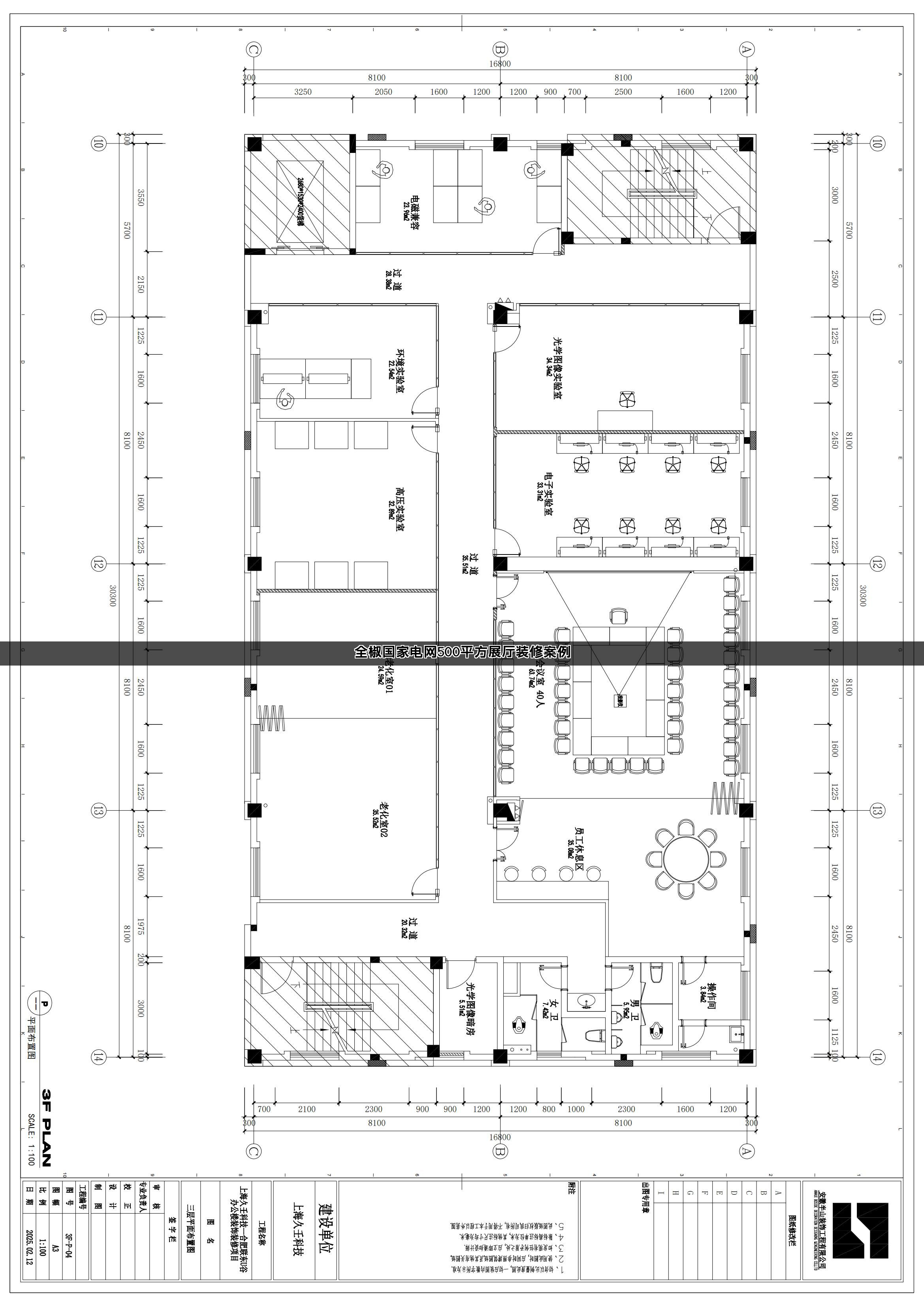
项目面积:500㎡
所在地:滁州市
设计说明:
企业展厅作为最直观的企业形象及产品宣传平台,要给领导、客户、媒体留下深刻印象,塑造企业品牌形象。我们从企业的形象定位出发,运用巧妙的创意催生空间的企业个性特征,向参观者传达企业形象、产品的展示。根据企业特点和行业特性我们会提炼出一些或者一个符号并结合色彩的运用贯穿整个展厅,突出企业形象,塑造和传播形象的统一。同时利用一些先进的技术设备和声光电的有机结合实现时代感和科技感,以及让参观者喜欢这种氛围。
该展厅装修设计项目以企业发展历程展示为主,没有选用企业VI色来贯穿整个展厅,而是选择大量使用木纹色来装饰整个展厅,合理的运用色彩搭配比例及造型来体现现代化展厅的视觉效果。
平面布局:
展厅展示区空间分为两部分,第一部分为结合入口门厅的公共区域,包括序厅、公司展示区、情况介绍和企业文化等区域。
第二部分为多媒体展厅区。
空间的处理和造型的搭配:
地面可以选用800*800亮光砖,加以与地面水平的光带和部分色彩及层次的搭配,给人以时代感、科技感,运用展示隔墙的合理布局和空间造型完美的结合,营造出合理的立体展示效果。
天花选用主体木色方通加上部分造型装饰的处理,与展墙、地面相呼应,犹如企业各部门间的完美协调与配合。
灯光的处理和运用:采用集成智能控制系统,便于操作与管理。明暗搭配,冷暖协调,主次分明,部分区域加以黄色光带、幻化的光影变化增加氛围的营造。
设备的管理:由于静态空间展示的局限性,在展厅内重点区域安排一些数字媒体设备,实现展览与参观互动,彻底颠覆传统的播放宣传片的静态汇报模式,让展厅成为宣扬自身在推动技术进步、创新商业模式、拓展全球市场等方面成就的最佳平台。并运用一体智能控制所有数字媒体设备以透彻的智能对所有数字设备实现一体控制,方便对设备的管理与使用。
安徽半山装饰工程有限公司是一家从事多年的室内设计装饰装修企业,具有总包叁级、装饰装修专项施工乙级以及工程设计专项资质,主要致力于办公室装修、写字楼装修、厂房装修、展厅装修、售楼部装修、样板间装修、民宿装修、店面店铺装修、学校装修、及其它商业空间装修设计施工一体化服务。咨询电话:18919604649
合肥装修公司 合肥工装公司

合肥半山装饰专注办公楼等工装领域20年,经验丰富。擅长结合各地市特色进行设计施工,以精湛技术和优质服务缔造高端传奇,联系电话18919604649。
合肥半山装饰专注打造铜陵企业总部进阶之路,20年经验团队运用前沿设计与精湛工艺,量身定制高端办公环境,助力企业形象升级。联系电话:18919604649(微信同号),专业承接办公楼/厂房装修项目!
探索宣城现代办公新标杆!合肥半山装饰以20年经验打造高端写字楼空间,融合专业设计与精湛工艺,提供一站式工装解决方案。联系电话:18919604649(微信同号),见证品质蜕变!
合肥半山装饰专注高端办公楼格调重塑,20年经验团队为芜湖企业定制专属方案,涵盖设计要点与先进施工技术,打造品质办公空间。
合肥半山装饰公司,专业办公楼、办公室、厂房装修,20年施工经验,合肥排名前十工装公司联系电话:18919604649(微信同号)。在长三角经济圈加速融合的背景下
安徽半山装饰专业承接厂房装修防水工程,凭借多年经验与精湛技术,为众多企业提供优质防水解决方案。实力见证,打造耐用、安全的厂房环境。
安徽半山装饰公司是厂房车间防水装修的首选!专业提供防水施工服务,多年行业经验,技术精湛。为您的厂房车间打造安全、耐用的防水装修解决方案。
半山装饰专注厂房装修,凭借卓越的施工实力和防水技术,为客户提供无忧的装修服务。从设计到施工,全程专业把控,确保厂房装修质量,打造理想工业空间。
安徽半山提供一站式厂房装修防水服务,专业施工团队确保防水一步到位。从设计到施工,全程无忧,让您的厂房装修更安心,防水更可靠。
安徽半山装饰专注厂房装修施工,强防水技术更出色!我们提供一站式装修服务,确保厂房防水无忧。专业团队,高品质材料,打造耐用美观的厂房环境。
企业展厅装修设计是一个综合性的项目,它涉及到空间规划、色彩搭配、材料选择、照明设计、展示内容策划等多个方面。以下是半山装饰对企业展厅装修设计的一些详细分析: 一、空间规划 功能分区:根据企业展厅的需求,合理规划不同的功能区域,如接待区、展示区、洽谈区、休息区等。每个区域都应具有明确的功能和定位,以满足不同场...
汽车展厅装修设计是一个复杂而细致的过程,需要考虑多个方面的因素以确保展厅能够充分展示汽车品牌形象,提升消费者的购车体验。下面就由安徽半山装饰带大家了解一下汽车展厅装修设计的注意事项: 一、主题与品牌形象 明确主题:展厅装修设计应明确主题,突出品牌特色。整体风格要与汽车品牌相匹配,展现品牌的独特魅力和文化内涵。 ...
在展厅装修设计中,避免视觉疲劳是至关重要的,因为它直接影响到参观者的体验和注意力保持。下面就由安徽半山装饰带大家了解一些有效的策略来避免视觉疲劳: 1. 合理规划色彩搭配 色彩选择:选择柔和、自然的色调作为主色调,如淡蓝色、米白色等,这些颜色有助于营造宁静、舒适的氛围,减少视觉刺激。 色彩对比:虽然需要一...
展厅装修里照明设计在展厅整体装修中占据重要地位,它不仅能突出展品的特色和亮点,还能营造出特定的氛围,提升观众的参观体验。下面就由安徽半山装饰带大家了解一下展厅装修中照明需要考虑的主要因素: 一、光源选择 光源类型:根据展厅的具体需求和展品特性,选择适合的光源类型。常见的光源包括LED灯、荧光灯、卤素灯等。其中,...
环保展厅装修材料的选择对于展现企业的环保理念和提升参观者的体验至关重要。下面就由安徽半山装饰还大家了解一些常见的环保展厅装修材料: 1. 环保涂料 特点:环保涂料通常具有低甲醛、低挥发性有机化合物(VOCs)释放的特点,对人体健康无害。它们不仅能提供良好的装饰效果,还能减少室内空气污染。 应用:适用于展厅的墙面、...
长按二维码识别添加微信