项目类型:新中式售楼部装修 专业售楼部装修设计公司 合肥售楼部装修公司
项目设计:半山装饰售楼部设计部A组
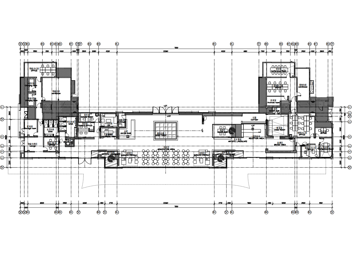
项目面积:800㎡
所在地:安徽·宣城市
设计说明:
本售楼部装修工程位于宣城市广德市境内。本案用现代风格穿插于中式元素,以新中式的方式展现。
设计师用极简和回归自然的设计语言表达着对大自然的敬畏。并非纯粹只是一个销售点,它更多的是为有意购房的客户营造一个内容丰富、氛围轻松的体验空间。

茅莱仙境,树林参天,透过栅格墙,后方的树木若隐若现,仿佛时间静止一般。静谧的意境,从天井洒下的阳光,营造出仙境般的景色。

沙盘区简洁大气,艺术吊灯精简而不失绚丽。侧旁的艺术装置在阳光照耀下,似闪金光,耀眼灿灿。

用白墙、金属隔断、木色等,加上绿植带的翠绿,在水吧区伸展开来,仿佛代表着传统气质的传达与延续,更是地域风格与设计的重新演绎。

茶,源于草木,源于自然,人在草木间。洽谈区环绕水吧,极简的色彩搭配及桌椅设计,点缀些许绿意,自然,亦是空间的一部分,提升空间品质、促进空间活力。

气味能够唤起回忆,将沿途的风景融入自然,,具有某种复杂的原始感,清新、冷静、仿佛置身于生态空间,这是一个自然的建筑空间。

安徽半山装饰工程有限公司是一家从事多年的室内设计装饰装修企业,具有总包叁级、装饰装修专项施工乙级以及工程设计专项资质,主要致力于办公室装修、写字楼装修、厂房装修、展厅装修、售楼部装修、样板间装修、店面店铺装修、学校装修、及其它商业空间装修设计施工一体化服务。咨询电话:18919604649
合肥半山装饰专注办公楼等工装领域20年,经验丰富。擅长结合各地市特色进行设计施工,以精湛技术和优质服务缔造高端传奇,联系电话18919604649。
合肥半山装饰专注打造铜陵企业总部进阶之路,20年经验团队运用前沿设计与精湛工艺,量身定制高端办公环境,助力企业形象升级。联系电话:18919604649(微信同号),专业承接办公楼/厂房装修项目!
探索宣城现代办公新标杆!合肥半山装饰以20年经验打造高端写字楼空间,融合专业设计与精湛工艺,提供一站式工装解决方案。联系电话:18919604649(微信同号),见证品质蜕变!
合肥半山装饰专注高端办公楼格调重塑,20年经验团队为芜湖企业定制专属方案,涵盖设计要点与先进施工技术,打造品质办公空间。
合肥半山装饰公司,专业办公楼、办公室、厂房装修,20年施工经验,合肥排名前十工装公司联系电话:18919604649(微信同号)。在长三角经济圈加速融合的背景下
安徽半山装饰专业承接厂房装修防水工程,凭借多年经验与精湛技术,为众多企业提供优质防水解决方案。实力见证,打造耐用、安全的厂房环境。
安徽半山装饰公司是厂房车间防水装修的首选!专业提供防水施工服务,多年行业经验,技术精湛。为您的厂房车间打造安全、耐用的防水装修解决方案。
半山装饰专注厂房装修,凭借卓越的施工实力和防水技术,为客户提供无忧的装修服务。从设计到施工,全程专业把控,确保厂房装修质量,打造理想工业空间。
安徽半山提供一站式厂房装修防水服务,专业施工团队确保防水一步到位。从设计到施工,全程无忧,让您的厂房装修更安心,防水更可靠。
安徽半山装饰专注厂房装修施工,强防水技术更出色!我们提供一站式装修服务,确保厂房防水无忧。专业团队,高品质材料,打造耐用美观的厂房环境。
企业展厅装修设计是一个综合性的项目,它涉及到空间规划、色彩搭配、材料选择、照明设计、展示内容策划等多个方面。以下是半山装饰对企业展厅装修设计的一些详细分析: 一、空间规划 功能分区:根据企业展厅的需求,合理规划不同的功能区域,如接待区、展示区、洽谈区、休息区等。每个区域都应具有明确的功能和定位,以满足不同场...
汽车展厅装修设计是一个复杂而细致的过程,需要考虑多个方面的因素以确保展厅能够充分展示汽车品牌形象,提升消费者的购车体验。下面就由安徽半山装饰带大家了解一下汽车展厅装修设计的注意事项: 一、主题与品牌形象 明确主题:展厅装修设计应明确主题,突出品牌特色。整体风格要与汽车品牌相匹配,展现品牌的独特魅力和文化内涵。 ...
在展厅装修设计中,避免视觉疲劳是至关重要的,因为它直接影响到参观者的体验和注意力保持。下面就由安徽半山装饰带大家了解一些有效的策略来避免视觉疲劳: 1. 合理规划色彩搭配 色彩选择:选择柔和、自然的色调作为主色调,如淡蓝色、米白色等,这些颜色有助于营造宁静、舒适的氛围,减少视觉刺激。 色彩对比:虽然需要一...
展厅装修里照明设计在展厅整体装修中占据重要地位,它不仅能突出展品的特色和亮点,还能营造出特定的氛围,提升观众的参观体验。下面就由安徽半山装饰带大家了解一下展厅装修中照明需要考虑的主要因素: 一、光源选择 光源类型:根据展厅的具体需求和展品特性,选择适合的光源类型。常见的光源包括LED灯、荧光灯、卤素灯等。其中,...
环保展厅装修材料的选择对于展现企业的环保理念和提升参观者的体验至关重要。下面就由安徽半山装饰还大家了解一些常见的环保展厅装修材料: 1. 环保涂料 特点:环保涂料通常具有低甲醛、低挥发性有机化合物(VOCs)释放的特点,对人体健康无害。它们不仅能提供良好的装饰效果,还能减少室内空气污染。 应用:适用于展厅的墙面、...
长按二维码识别添加微信