项目信息
项目地址:安徽.淮北市(本项目所有设计资料版权为我公司所有,侵权将追究法律责任)
项目类型:轻奢风样板间装修设计 专业样板间装修设计公司 合肥样板间装修公司
项目面积:130㎡
施工单位:安徽半山装饰工程有限公司
设计说明:
本样板间装修设计项目属于室内装饰装修项目,设计师采用现代轻奢风格,内容包括水电路敷设,墙、顶、地面装饰及后期软装安装。金属线条、块面线性以及大面木制饰面板的运用,赋予会客空间柔美的情绪,是东方的神秘感,大气而拥有张力。现代主义建筑的美学记忆在设计中娓娓道来,强调着几何的线条感,家俱与空间元素融合便得以纳入设计的点-线-面之间。
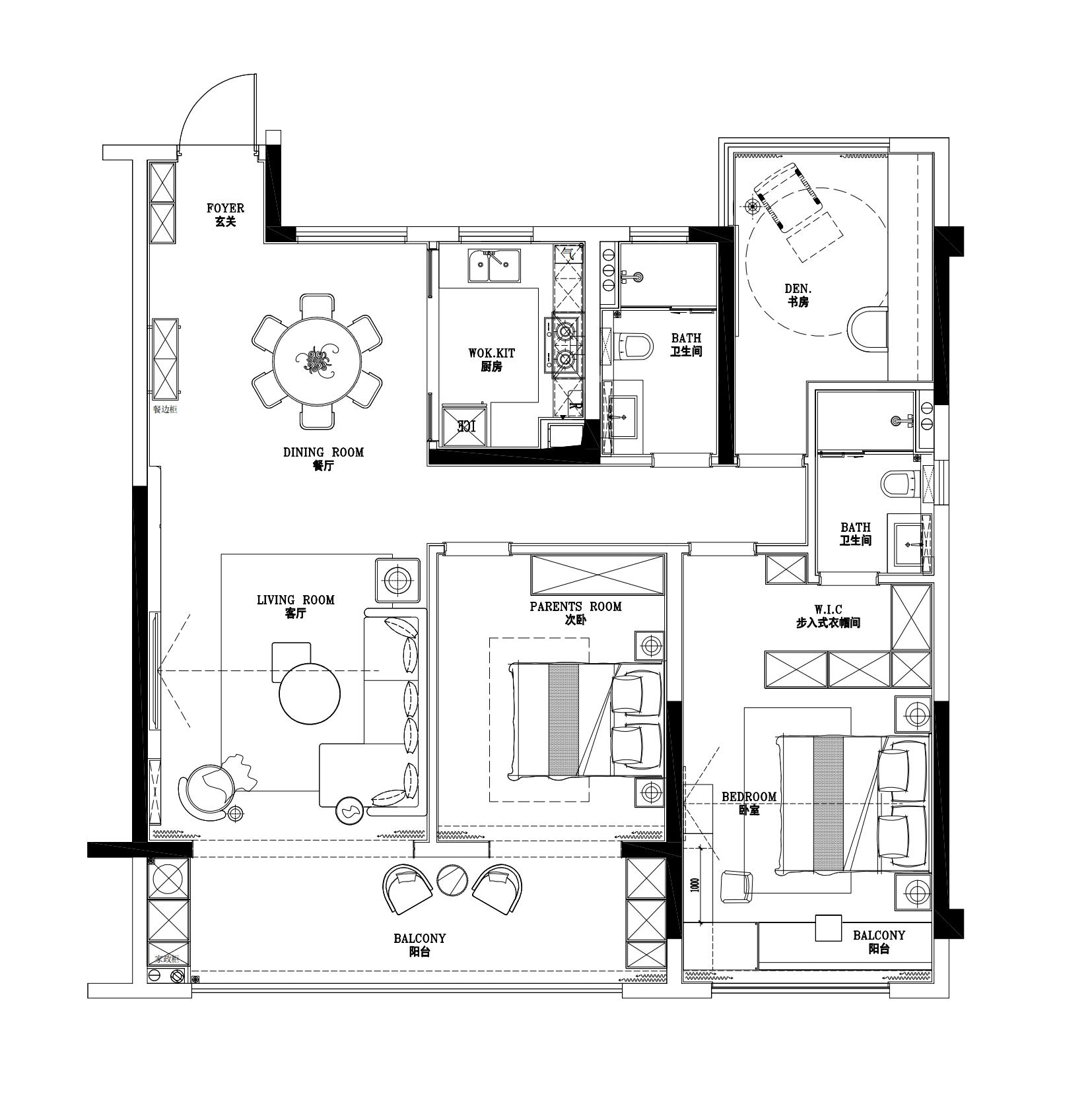
原始平面图

平面布置图

客、餐厅及阳台
效果图

实景图

灰色仿大理石地砖大面积铺贴,搭配浅色木饰面,电视背景墙采用天然带玉质的岩板冷翡翠,赋以不锈钢等细节,天花采用灯带设计,顶部增加磁吸轨道灯;色调以黑、白、灰,点缀翡翠色,体现空间内奢华艺术的典雅气质。
效果图

实景图

客餐厅及12平方的大阳台连贯又相互独立,互不干扰,相互串联而富有层次感,以开放的空间形式,强化出互动关系,适配于多种场景的灵活切换;
主卧
效果图

实景图


主卧室延续素雅奢华的风格气质,超大储物柜,满足女主人的生活需求,背景墙整体采用浅灰色系硬包细节收口,搭配细腻的床品织物肌理,质感丰富细腻,雅致而内蕴。
客卧
效果图

实景图

床头背景墙面选用浅色硬包,整个环线的隐蔽灯带兼具温馨色彩。营造出层层递进的灯光,温润而舒适。保留原结构阳台窗,睡眠空间增添一些轻松安宁的元素。
书房
效果图

实景图

书房空间深色装饰架与浅色皮革纹理形成明暗对比,收口细节更加丰富细腻,深色木制作为层板,底部暗藏线性灯带,整体美观,展示性墙,整个空间赋予音乐主题,可以工作、阅读、放空等,为主人赢得一处释放心灵之地。
卫生间
效果图

实景图

卫生间面盆及壁挂马桶的延伸台面,增加台面的储物功能;淋浴区地面大理石拉槽处理,排水快、不积水,防滑等作用。
安徽半山装饰工程有限公司是一家从事多年的室内设计装饰装修企业,具有总包叁级、装饰装修专项施工乙级以及工程设计专项资质,主要致力于办公室装修、写字楼装修、厂房装修、展厅装修、售楼部装修、样板间装修、民宿装修、店面店铺装修、学校装修、及其它商业空间装修设计施工一体化服务。咨询电话:18919604649
合肥半山装饰专注办公楼等工装领域20年,经验丰富。擅长结合各地市特色进行设计施工,以精湛技术和优质服务缔造高端传奇,联系电话18919604649。
合肥半山装饰专注打造铜陵企业总部进阶之路,20年经验团队运用前沿设计与精湛工艺,量身定制高端办公环境,助力企业形象升级。联系电话:18919604649(微信同号),专业承接办公楼/厂房装修项目!
探索宣城现代办公新标杆!合肥半山装饰以20年经验打造高端写字楼空间,融合专业设计与精湛工艺,提供一站式工装解决方案。联系电话:18919604649(微信同号),见证品质蜕变!
合肥半山装饰专注高端办公楼格调重塑,20年经验团队为芜湖企业定制专属方案,涵盖设计要点与先进施工技术,打造品质办公空间。
合肥半山装饰公司,专业办公楼、办公室、厂房装修,20年施工经验,合肥排名前十工装公司联系电话:18919604649(微信同号)。在长三角经济圈加速融合的背景下
安徽半山装饰专业承接厂房装修防水工程,凭借多年经验与精湛技术,为众多企业提供优质防水解决方案。实力见证,打造耐用、安全的厂房环境。
安徽半山装饰公司是厂房车间防水装修的首选!专业提供防水施工服务,多年行业经验,技术精湛。为您的厂房车间打造安全、耐用的防水装修解决方案。
半山装饰专注厂房装修,凭借卓越的施工实力和防水技术,为客户提供无忧的装修服务。从设计到施工,全程专业把控,确保厂房装修质量,打造理想工业空间。
安徽半山提供一站式厂房装修防水服务,专业施工团队确保防水一步到位。从设计到施工,全程无忧,让您的厂房装修更安心,防水更可靠。
安徽半山装饰专注厂房装修施工,强防水技术更出色!我们提供一站式装修服务,确保厂房防水无忧。专业团队,高品质材料,打造耐用美观的厂房环境。
企业展厅装修设计是一个综合性的项目,它涉及到空间规划、色彩搭配、材料选择、照明设计、展示内容策划等多个方面。以下是半山装饰对企业展厅装修设计的一些详细分析: 一、空间规划 功能分区:根据企业展厅的需求,合理规划不同的功能区域,如接待区、展示区、洽谈区、休息区等。每个区域都应具有明确的功能和定位,以满足不同场...
汽车展厅装修设计是一个复杂而细致的过程,需要考虑多个方面的因素以确保展厅能够充分展示汽车品牌形象,提升消费者的购车体验。下面就由安徽半山装饰带大家了解一下汽车展厅装修设计的注意事项: 一、主题与品牌形象 明确主题:展厅装修设计应明确主题,突出品牌特色。整体风格要与汽车品牌相匹配,展现品牌的独特魅力和文化内涵。 ...
在展厅装修设计中,避免视觉疲劳是至关重要的,因为它直接影响到参观者的体验和注意力保持。下面就由安徽半山装饰带大家了解一些有效的策略来避免视觉疲劳: 1. 合理规划色彩搭配 色彩选择:选择柔和、自然的色调作为主色调,如淡蓝色、米白色等,这些颜色有助于营造宁静、舒适的氛围,减少视觉刺激。 色彩对比:虽然需要一...
展厅装修里照明设计在展厅整体装修中占据重要地位,它不仅能突出展品的特色和亮点,还能营造出特定的氛围,提升观众的参观体验。下面就由安徽半山装饰带大家了解一下展厅装修中照明需要考虑的主要因素: 一、光源选择 光源类型:根据展厅的具体需求和展品特性,选择适合的光源类型。常见的光源包括LED灯、荧光灯、卤素灯等。其中,...
环保展厅装修材料的选择对于展现企业的环保理念和提升参观者的体验至关重要。下面就由安徽半山装饰还大家了解一些常见的环保展厅装修材料: 1. 环保涂料 特点:环保涂料通常具有低甲醛、低挥发性有机化合物(VOCs)释放的特点,对人体健康无害。它们不仅能提供良好的装饰效果,还能减少室内空气污染。 应用:适用于展厅的墙面、...
长按二维码识别添加微信