巢湖厵村精品度假酒店CG01办公室装修案例
项目类型:民宿
项目设计:设计B组
项目面积:1200㎡
所在地:巢湖市黄麓镇
设计说明:
巢湖厵村精品民宿度假酒店是国家5A级旅游景区、国家生态旅游示范区规划、建设和运营,将其打造成一个集“自然风景观光区、精品民宿体验区、休闲娱乐引领区、健康养生康养区、企业发展拓展区、亲子游玩研学区、生态农业科教区”七大旅游产业于一体综合性一站式旅游目的地。
该案例为度假酒店内部办公室装修。设计师选用现代简约风,其着重点就在于简,即外形简洁,室内空间朴素、大方,但其功能性强。在选材上,运用了大量的天然古堡灰石材、原木色木饰面、灰色布艺硬包、黑色不锈钢线条及本色的不锈钢水波纹板等等。颜色没有任何花哨,简单明了,更加符合办公室的严谨要求,整体布局规划合理,格调简洁、素雅。

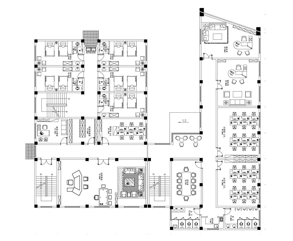
一层平面图

门厅效果图
门厅:此楼为员工独立办公楼使用,无需设置接待前台,入门直接为公司形象布景。色调以灰色为主色调,地面及墙面用古堡灰大理石铺贴,承重柱使用爵士白点缀,加上一些灯光,感觉端庄典雅。

沙盘区效果图

沙盘区360全景效果图
沙盘区:沙盘区展示整个园区模型,对面是员工休闲区,设计了水吧台及大面积酒柜,活力红的柜板,内藏灯带,温暖而活力四射,让安全感与刺激性并驾齐驱,是充满安心与值得托付的颜色。石膏板吊顶做凹凸造型,内嵌LED筒灯,简单而又区域分明。

二层平面图

接待区及茶台效果

办公区效果图

总经理办公室展开效果图
总经理办公室:此区域采用中国传统的室内设计,融合了庄重与优雅双重气质。室内有75m2,顶面石膏板满吊顶,没有做区域分隔,只是地面采用深灰、浅灰色大理石,以波导线做修饰。中式风格的古色古香与时髦的现代风格的天然联接,使生活的实用性和对传统文化的寻求同时得到了满意,这种绝妙的组合给人以激烈的视觉意志力,成为时髦与古典的柔媚结合。
上一篇:巢湖厵村民宿休闲餐厅
下一篇:日式民宿度假酒店装修
合肥半山装饰专注办公楼等工装领域20年,经验丰富。擅长结合各地市特色进行设计施工,以精湛技术和优质服务缔造高端传奇,联系电话18919604649。
合肥半山装饰专注打造铜陵企业总部进阶之路,20年经验团队运用前沿设计与精湛工艺,量身定制高端办公环境,助力企业形象升级。联系电话:18919604649(微信同号),专业承接办公楼/厂房装修项目!
探索宣城现代办公新标杆!合肥半山装饰以20年经验打造高端写字楼空间,融合专业设计与精湛工艺,提供一站式工装解决方案。联系电话:18919604649(微信同号),见证品质蜕变!
合肥半山装饰专注高端办公楼格调重塑,20年经验团队为芜湖企业定制专属方案,涵盖设计要点与先进施工技术,打造品质办公空间。
合肥半山装饰公司,专业办公楼、办公室、厂房装修,20年施工经验,合肥排名前十工装公司联系电话:18919604649(微信同号)。在长三角经济圈加速融合的背景下
安徽半山装饰专业承接厂房装修防水工程,凭借多年经验与精湛技术,为众多企业提供优质防水解决方案。实力见证,打造耐用、安全的厂房环境。
安徽半山装饰公司是厂房车间防水装修的首选!专业提供防水施工服务,多年行业经验,技术精湛。为您的厂房车间打造安全、耐用的防水装修解决方案。
半山装饰专注厂房装修,凭借卓越的施工实力和防水技术,为客户提供无忧的装修服务。从设计到施工,全程专业把控,确保厂房装修质量,打造理想工业空间。
安徽半山提供一站式厂房装修防水服务,专业施工团队确保防水一步到位。从设计到施工,全程无忧,让您的厂房装修更安心,防水更可靠。
安徽半山装饰专注厂房装修施工,强防水技术更出色!我们提供一站式装修服务,确保厂房防水无忧。专业团队,高品质材料,打造耐用美观的厂房环境。
企业展厅装修设计是一个综合性的项目,它涉及到空间规划、色彩搭配、材料选择、照明设计、展示内容策划等多个方面。以下是半山装饰对企业展厅装修设计的一些详细分析: 一、空间规划 功能分区:根据企业展厅的需求,合理规划不同的功能区域,如接待区、展示区、洽谈区、休息区等。每个区域都应具有明确的功能和定位,以满足不同场...
汽车展厅装修设计是一个复杂而细致的过程,需要考虑多个方面的因素以确保展厅能够充分展示汽车品牌形象,提升消费者的购车体验。下面就由安徽半山装饰带大家了解一下汽车展厅装修设计的注意事项: 一、主题与品牌形象 明确主题:展厅装修设计应明确主题,突出品牌特色。整体风格要与汽车品牌相匹配,展现品牌的独特魅力和文化内涵。 ...
在展厅装修设计中,避免视觉疲劳是至关重要的,因为它直接影响到参观者的体验和注意力保持。下面就由安徽半山装饰带大家了解一些有效的策略来避免视觉疲劳: 1. 合理规划色彩搭配 色彩选择:选择柔和、自然的色调作为主色调,如淡蓝色、米白色等,这些颜色有助于营造宁静、舒适的氛围,减少视觉刺激。 色彩对比:虽然需要一...
展厅装修里照明设计在展厅整体装修中占据重要地位,它不仅能突出展品的特色和亮点,还能营造出特定的氛围,提升观众的参观体验。下面就由安徽半山装饰带大家了解一下展厅装修中照明需要考虑的主要因素: 一、光源选择 光源类型:根据展厅的具体需求和展品特性,选择适合的光源类型。常见的光源包括LED灯、荧光灯、卤素灯等。其中,...
环保展厅装修材料的选择对于展现企业的环保理念和提升参观者的体验至关重要。下面就由安徽半山装饰还大家了解一些常见的环保展厅装修材料: 1. 环保涂料 特点:环保涂料通常具有低甲醛、低挥发性有机化合物(VOCs)释放的特点,对人体健康无害。它们不仅能提供良好的装饰效果,还能减少室内空气污染。 应用:适用于展厅的墙面、...
长按二维码识别添加微信