项目类型:现代简约风办公室装修
项目设计: 半山装饰办公空间设计部B组 专业合肥办公室装修公司 合肥办公楼装修设计公司
项目面积:6000㎡
所在地:安徽·巢湖
主要材料:古堡灰大理石、玻化砖、木饰面等
设计说明:
该办公楼装修设计项目位于安徽巢湖经济开发区花山工业园内,位置优越,交通便利,主要生产电力电子器件、电力电容器、储能电容器、高低压开关电器、高低压成套设备、电力无功补偿设备、智能监测设备、电能质量设备、通讯设备、电力自动化设备以及相关软件的研发、设计、系统集成、生产、销售及技术服务。
结合建筑的既有特性和产品特征,设计师以新锐的时尚艺术平衡其中,用理性的思维,诗意的表达。旨在为业主打造出一个充满现代感而又不失时尚格调、追求极致的现代化办公空间。

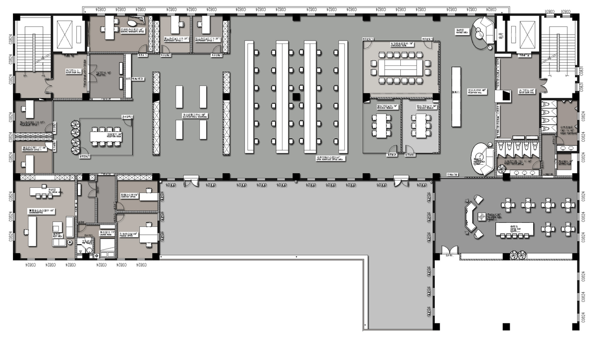
平面布置图

接待厅服务台角度效果
走进空间,驻足于接待区域前,第一眼映入眼帘的便是那现代和中式结合的形象背景墙,上半部以石材石片做层峦叠嶂的山峰,下部用实木木方勾勒出水中上部山的倒影景像,新中式与现代完美配合,上下两组形状,一深一浅,天地呼应,互为依托,极具禅意。
开放员工办公区角度效果
员工办公区域采用开放敞开式,最大化利用了空间和光线,顶面搭配工业风的吊灯,地面浅灰色地毯,让空间充满时尚舒适的氛围。
接待室角度效果
玻璃是人类一项伟大的发明,接待室在本案中作为共享式的空间,正运用了四面玻璃作为隔断形式,获得更通透的视野,同时也借助了更多的自然光。
茶水间接待区角度效果
茶水间接待区简洁大方,家具运用了不对称围合布置,采用亮蓝色茶水柜作为空间点缀色,加强空间节奏感,使得空间更为层次分明的同时,也烘托出柔和的舒适氛围,给人以放松安静的感觉。

总经理办公室
董事长办公室角度效果
墙面运用硅澡泥突出肌理,配以家具木饰面,皮质,金属细腻的质感,凸显办公室档次和舒适性,空间色调柔和时尚彰显业主品味。合肥装修公司
安徽半山装饰工程有限公司是一家从事多年的室内设计装饰装修企业,具有总包叁级、装饰装修专项施工乙级以及工程设计专项资质,主要致力于办公室装修、写字楼装修、厂房装修、展厅装修、售楼部装修、样板间装修、民宿装修、店面店铺装修、学校装修、及其它商业空间装修设计施工一体化服务。咨询电话:18919604649
合肥半山装饰专注办公楼等工装领域20年,经验丰富。擅长结合各地市特色进行设计施工,以精湛技术和优质服务缔造高端传奇,联系电话18919604649。
合肥半山装饰专注打造铜陵企业总部进阶之路,20年经验团队运用前沿设计与精湛工艺,量身定制高端办公环境,助力企业形象升级。联系电话:18919604649(微信同号),专业承接办公楼/厂房装修项目!
探索宣城现代办公新标杆!合肥半山装饰以20年经验打造高端写字楼空间,融合专业设计与精湛工艺,提供一站式工装解决方案。联系电话:18919604649(微信同号),见证品质蜕变!
合肥半山装饰专注高端办公楼格调重塑,20年经验团队为芜湖企业定制专属方案,涵盖设计要点与先进施工技术,打造品质办公空间。
合肥半山装饰公司,专业办公楼、办公室、厂房装修,20年施工经验,合肥排名前十工装公司联系电话:18919604649(微信同号)。在长三角经济圈加速融合的背景下
安徽半山装饰专业承接厂房装修防水工程,凭借多年经验与精湛技术,为众多企业提供优质防水解决方案。实力见证,打造耐用、安全的厂房环境。
安徽半山装饰公司是厂房车间防水装修的首选!专业提供防水施工服务,多年行业经验,技术精湛。为您的厂房车间打造安全、耐用的防水装修解决方案。
半山装饰专注厂房装修,凭借卓越的施工实力和防水技术,为客户提供无忧的装修服务。从设计到施工,全程专业把控,确保厂房装修质量,打造理想工业空间。
安徽半山提供一站式厂房装修防水服务,专业施工团队确保防水一步到位。从设计到施工,全程无忧,让您的厂房装修更安心,防水更可靠。
安徽半山装饰专注厂房装修施工,强防水技术更出色!我们提供一站式装修服务,确保厂房防水无忧。专业团队,高品质材料,打造耐用美观的厂房环境。
企业展厅装修设计是一个综合性的项目,它涉及到空间规划、色彩搭配、材料选择、照明设计、展示内容策划等多个方面。以下是半山装饰对企业展厅装修设计的一些详细分析: 一、空间规划 功能分区:根据企业展厅的需求,合理规划不同的功能区域,如接待区、展示区、洽谈区、休息区等。每个区域都应具有明确的功能和定位,以满足不同场...
汽车展厅装修设计是一个复杂而细致的过程,需要考虑多个方面的因素以确保展厅能够充分展示汽车品牌形象,提升消费者的购车体验。下面就由安徽半山装饰带大家了解一下汽车展厅装修设计的注意事项: 一、主题与品牌形象 明确主题:展厅装修设计应明确主题,突出品牌特色。整体风格要与汽车品牌相匹配,展现品牌的独特魅力和文化内涵。 ...
在展厅装修设计中,避免视觉疲劳是至关重要的,因为它直接影响到参观者的体验和注意力保持。下面就由安徽半山装饰带大家了解一些有效的策略来避免视觉疲劳: 1. 合理规划色彩搭配 色彩选择:选择柔和、自然的色调作为主色调,如淡蓝色、米白色等,这些颜色有助于营造宁静、舒适的氛围,减少视觉刺激。 色彩对比:虽然需要一...
展厅装修里照明设计在展厅整体装修中占据重要地位,它不仅能突出展品的特色和亮点,还能营造出特定的氛围,提升观众的参观体验。下面就由安徽半山装饰带大家了解一下展厅装修中照明需要考虑的主要因素: 一、光源选择 光源类型:根据展厅的具体需求和展品特性,选择适合的光源类型。常见的光源包括LED灯、荧光灯、卤素灯等。其中,...
环保展厅装修材料的选择对于展现企业的环保理念和提升参观者的体验至关重要。下面就由安徽半山装饰还大家了解一些常见的环保展厅装修材料: 1. 环保涂料 特点:环保涂料通常具有低甲醛、低挥发性有机化合物(VOCs)释放的特点,对人体健康无害。它们不仅能提供良好的装饰效果,还能减少室内空气污染。 应用:适用于展厅的墙面、...
长按二维码识别添加微信