项目类型:厂房办公室翻新改造 专业合肥办公室装修公司 合肥办公楼装修设计公司
项目设计:半山装饰办公空间设计部A组
项目面积:1000㎡
所在地:安徽·合肥
设计说明:
安徽皖新电机有限公司位于合肥市经济技术开发区卧云路以南、蓬莱路以东2151号,主要从事车用电动机的研发、制造、销售、技术服务及咨询;工业车辆及工程机械的零部件、机电产品的研发、制造、销售、服务。
该案例为客户生产厂房内二层管理办公室改造工程,面积1000平方。原二层办公室为彩钢瓦泡沫芯结构,达不到防火级要求,现全部拆除做石膏板隔墙。客户在比较了设计方案、价格,参观了我们公司以及施工工地之后,最终从三家公司中选择与半山装饰合作。主要还是看中我们多年来做工装的专业性,办公室旧貌换新颜,我们按质按量的完成了装修工程。客户对我们工作非常满意,后期的厂房大门改造,厂区地面做混凝土,活动房搭建。也交由我们设计与施工!
原始照片(大门)
墙面石材局部已经掉落
门楼的氟碳漆墙面,已经斑驳,局部掉落

厂房大门效果图
新做的大门墙面用的是花岗岩黄金麻,左面标志为石材阳刻效果,右面标志为黑色拉丝不锈钢金属字。
门楼外墙新做黄金麻色真石漆。

厂房大门效果图
新做的大门墙面用的是花岗岩黄金麻,左面标志为石材阳刻效果,右面标志为黑色拉丝不锈钢字。
门楼外墙新做黄金麻色真石漆。

原始照片(楼梯)
原始楼梯是不锈钢扶手,楼梯钢板焊制,表面的油漆已经掉落,在行走的时候,楼梯有明显震感,会有轻微晃动

新做厂房楼梯
我们首先拆除了原有的不锈钢扶手,改用方管焊制,刷氟碳漆。
对楼梯主体进行了加固处理,在转角增加支撑柱。
楼梯踏面全部用石材铺贴。
顶面采用石膏板吊顶,筒灯及灯带的使用,即增加了楼梯处采光,也增加了环境氛围。
改造完之后的楼梯,行走在上面没有任何震感,不晃动,很有安全感,石材的使用,提升了整个档次。

原始照片(过道)
墙体原为彩钢瓦泡沫芯结构
过道扶手为不锈钢扶手

新做过道照片
新做石膏板隔墙,过道墙体采用高隔间双层玻璃加百叶
地面为仿木纹的石塑地板
过道扶手为方管焊制,刷氟碳漆。

原始照片(办公室)
墙体原为彩钢瓦泡沫芯结构
框棉板吊顶已经局部变形,顶面方块灯的灯芯是灯管,不节能,还特别容易坏

新做办公室照片
新做石膏板隔墙,刷白色乳胶漆,过道墙体采用高隔间双层玻璃加百叶。
吊顶为硅钙板集成吊顶,之前的灯具方块灯的灯芯是灯管特别容易坏,常常需要更换,客户也很是头疼,这一次我们把灯具全部更换为雷士的LED光片灯。
既节能也增加了整体照明的亮度。
会议室墙面局部使用吸音板饰面及磁吸白色烤漆玻璃,地面为仿木纹石塑地板

新做卫生间照片
整体浴室柜
箭牌感应小便斗及座便器

整体照片对比

部分施工照片

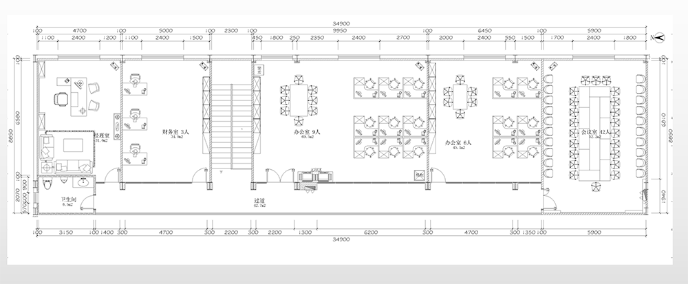
二层平面布置图
功能区:总经理室、财务室、员工办公室、会议室、卫生间、公共过道

安徽半山装饰工程有限公司是一家从事多年的室内设计装饰装修企业,具有总包叁级、装饰装修专项施工乙级以及工程设计专项资质,主要致力于办公室装修、写字楼装修、厂房装修、展厅装修、售楼部装修、样板间装修、民宿装修、店面店铺装修、学校装修、及其它商业空间装修设计施工一体化服务。咨询电话:18919604649
合肥半山装饰专注办公楼等工装领域20年,经验丰富。擅长结合各地市特色进行设计施工,以精湛技术和优质服务缔造高端传奇,联系电话18919604649。
合肥半山装饰专注打造铜陵企业总部进阶之路,20年经验团队运用前沿设计与精湛工艺,量身定制高端办公环境,助力企业形象升级。联系电话:18919604649(微信同号),专业承接办公楼/厂房装修项目!
探索宣城现代办公新标杆!合肥半山装饰以20年经验打造高端写字楼空间,融合专业设计与精湛工艺,提供一站式工装解决方案。联系电话:18919604649(微信同号),见证品质蜕变!
合肥半山装饰专注高端办公楼格调重塑,20年经验团队为芜湖企业定制专属方案,涵盖设计要点与先进施工技术,打造品质办公空间。
合肥半山装饰公司,专业办公楼、办公室、厂房装修,20年施工经验,合肥排名前十工装公司联系电话:18919604649(微信同号)。在长三角经济圈加速融合的背景下
安徽半山装饰专业承接厂房装修防水工程,凭借多年经验与精湛技术,为众多企业提供优质防水解决方案。实力见证,打造耐用、安全的厂房环境。
安徽半山装饰公司是厂房车间防水装修的首选!专业提供防水施工服务,多年行业经验,技术精湛。为您的厂房车间打造安全、耐用的防水装修解决方案。
半山装饰专注厂房装修,凭借卓越的施工实力和防水技术,为客户提供无忧的装修服务。从设计到施工,全程专业把控,确保厂房装修质量,打造理想工业空间。
安徽半山提供一站式厂房装修防水服务,专业施工团队确保防水一步到位。从设计到施工,全程无忧,让您的厂房装修更安心,防水更可靠。
安徽半山装饰专注厂房装修施工,强防水技术更出色!我们提供一站式装修服务,确保厂房防水无忧。专业团队,高品质材料,打造耐用美观的厂房环境。
企业展厅装修设计是一个综合性的项目,它涉及到空间规划、色彩搭配、材料选择、照明设计、展示内容策划等多个方面。以下是半山装饰对企业展厅装修设计的一些详细分析: 一、空间规划 功能分区:根据企业展厅的需求,合理规划不同的功能区域,如接待区、展示区、洽谈区、休息区等。每个区域都应具有明确的功能和定位,以满足不同场...
汽车展厅装修设计是一个复杂而细致的过程,需要考虑多个方面的因素以确保展厅能够充分展示汽车品牌形象,提升消费者的购车体验。下面就由安徽半山装饰带大家了解一下汽车展厅装修设计的注意事项: 一、主题与品牌形象 明确主题:展厅装修设计应明确主题,突出品牌特色。整体风格要与汽车品牌相匹配,展现品牌的独特魅力和文化内涵。 ...
在展厅装修设计中,避免视觉疲劳是至关重要的,因为它直接影响到参观者的体验和注意力保持。下面就由安徽半山装饰带大家了解一些有效的策略来避免视觉疲劳: 1. 合理规划色彩搭配 色彩选择:选择柔和、自然的色调作为主色调,如淡蓝色、米白色等,这些颜色有助于营造宁静、舒适的氛围,减少视觉刺激。 色彩对比:虽然需要一...
展厅装修里照明设计在展厅整体装修中占据重要地位,它不仅能突出展品的特色和亮点,还能营造出特定的氛围,提升观众的参观体验。下面就由安徽半山装饰带大家了解一下展厅装修中照明需要考虑的主要因素: 一、光源选择 光源类型:根据展厅的具体需求和展品特性,选择适合的光源类型。常见的光源包括LED灯、荧光灯、卤素灯等。其中,...
环保展厅装修材料的选择对于展现企业的环保理念和提升参观者的体验至关重要。下面就由安徽半山装饰还大家了解一些常见的环保展厅装修材料: 1. 环保涂料 特点:环保涂料通常具有低甲醛、低挥发性有机化合物(VOCs)释放的特点,对人体健康无害。它们不仅能提供良好的装饰效果,还能减少室内空气污染。 应用:适用于展厅的墙面、...
长按二维码识别添加微信