项目地点:中国.安徽.合肥 合肥精品店铺装修设计公司 专业店铺装修设计公司
项目性质:婚纱摄影店装饰装修设计
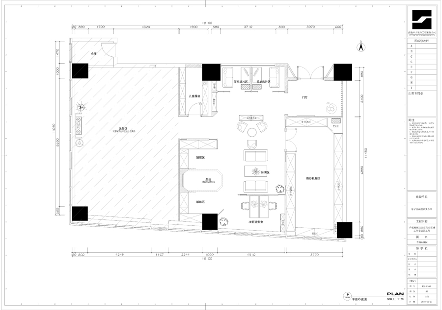
项目面积:200㎡
硬装造价:1000元/平方
主要材料:玻璃、水泥乳漆、方管、大理石砖、免漆板等
设计说明:
婚纱店装修需要考虑多方面的因素,在装潢上面不能使用太过艳丽的色彩,毕竟新人才是主角,穿上婚纱是每个女人一生最美的时刻,婚纱店装修设计影响着顾客的体验感,所以整体简约明亮为主,为每一位新人打造出专属的完美的爱情空间。
工业风婚纱摄影店装修设计使用冷色系调加上一些暖色系进行调色。整个空间给人感觉是神秘单不拘谨。



安徽半山装饰工程有限公司是一家从事多年的室内设计装饰装修企业,具有总包叁级、装饰装修专项施工乙级以及工程设计专项资质,主要致力于办公室装修、写字楼装修、厂房装修、展厅装修、售楼部装修、样板间装修、民宿装修、店面店铺装修、学校装修、及其它商业空间装修设计施工一体化服务。
咨询电话:18919604649
上一篇:合肥瑶海区服装店装修设计
下一篇:合肥200平方精品鞋店装修设计
探索智慧办公新范式!安徽半山装饰专注合肥专业办公楼设计,以理性规划融合美学视觉,打造极致舒适空间。拨打电话18919604649开启高效办公变革。
探索办公空间革新之道!安徽半山装饰以科学动线规划+美学设计+人性化体验,打造高效舒适办公环境,合肥企业专属定制方案。联系电话18919604649
揭秘高效能办公室打造的三维法则!安徽半山装饰专注合肥办公楼装修,通过科学布局、视觉引导与舒适设计提升办公效率。专业团队定制方案,热线18919604649即刻咨询!
揭秘提升职场幸福感的三大核心要素!安徽半山装饰专注合肥办公室/办公楼装修,运用科学布局、美学设计与人体工学打造舒适办公空间,电话18919604649即刻咨询。
安徽半山装饰专注合肥办公室装修,提供科学布局、美学设计与舒适体验一站式解决方案,打造高效现代办公环境,电话18919604649。
安徽半山装饰专业承接厂房装修防水工程,凭借多年经验与精湛技术,为众多企业提供优质防水解决方案。实力见证,打造耐用、安全的厂房环境。
安徽半山装饰公司是厂房车间防水装修的首选!专业提供防水施工服务,多年行业经验,技术精湛。为您的厂房车间打造安全、耐用的防水装修解决方案。
半山装饰专注厂房装修,凭借卓越的施工实力和防水技术,为客户提供无忧的装修服务。从设计到施工,全程专业把控,确保厂房装修质量,打造理想工业空间。
安徽半山提供一站式厂房装修防水服务,专业施工团队确保防水一步到位。从设计到施工,全程无忧,让您的厂房装修更安心,防水更可靠。
安徽半山装饰专注厂房装修施工,强防水技术更出色!我们提供一站式装修服务,确保厂房防水无忧。专业团队,高品质材料,打造耐用美观的厂房环境。
企业展厅装修设计是一个综合性的项目,它涉及到空间规划、色彩搭配、材料选择、照明设计、展示内容策划等多个方面。以下是半山装饰对企业展厅装修设计的一些详细分析: 一、空间规划 功能分区:根据企业展厅的需求,合理规划不同的功能区域,如接待区、展示区、洽谈区、休息区等。每个区域都应具有明确的功能和定位,以满足不同场...
汽车展厅装修设计是一个复杂而细致的过程,需要考虑多个方面的因素以确保展厅能够充分展示汽车品牌形象,提升消费者的购车体验。下面就由安徽半山装饰带大家了解一下汽车展厅装修设计的注意事项: 一、主题与品牌形象 明确主题:展厅装修设计应明确主题,突出品牌特色。整体风格要与汽车品牌相匹配,展现品牌的独特魅力和文化内涵。 ...
在展厅装修设计中,避免视觉疲劳是至关重要的,因为它直接影响到参观者的体验和注意力保持。下面就由安徽半山装饰带大家了解一些有效的策略来避免视觉疲劳: 1. 合理规划色彩搭配 色彩选择:选择柔和、自然的色调作为主色调,如淡蓝色、米白色等,这些颜色有助于营造宁静、舒适的氛围,减少视觉刺激。 色彩对比:虽然需要一...
展厅装修里照明设计在展厅整体装修中占据重要地位,它不仅能突出展品的特色和亮点,还能营造出特定的氛围,提升观众的参观体验。下面就由安徽半山装饰带大家了解一下展厅装修中照明需要考虑的主要因素: 一、光源选择 光源类型:根据展厅的具体需求和展品特性,选择适合的光源类型。常见的光源包括LED灯、荧光灯、卤素灯等。其中,...
环保展厅装修材料的选择对于展现企业的环保理念和提升参观者的体验至关重要。下面就由安徽半山装饰还大家了解一些常见的环保展厅装修材料: 1. 环保涂料 特点:环保涂料通常具有低甲醛、低挥发性有机化合物(VOCs)释放的特点,对人体健康无害。它们不仅能提供良好的装饰效果,还能减少室内空气污染。 应用:适用于展厅的墙面、...
长按二维码识别添加微信